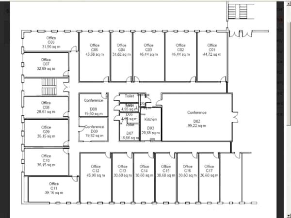
Nowoczesna,wykończona powierzchnia biurowa ,z pełnym zapleczem socjalnym i dostępem do sal konferencyjnych.Powierzchnie biurowe do wynajęcia (od 31 m2 do ok. 400 m2) w biurowcu zlokalizowanym w dzielnicy Fabryczna. przy jednej z kluczowych arterii miasta ? ulicy Lotniczej. W pobliżu znajduje się węzeł komunikacyjny. Dojazd do obiektu jest bardzo dobry zarówno środkami komunikacji miejskiej, jak i samochodem. (...)
Nowoczesna,wykończona powierzchnia biurowa ,z pełnym zapleczem socjalnym i dostępem do sal konferencyjnych.Powierzchnie biurowe do wynajęcia (od 31 m2 do ok. 400 m2) w biurowcu zlokalizowanym w dzielnicy Fabryczna. przy jednej z kluczowych arterii miasta ? ulicy Lotniczej. W pobliżu znajduje się węzeł komunikacyjny. Dojazd do obiektu jest bardzo dobry zarówno środkami komunikacji miejskiej, jak i samochodem. Na terenie posesji znajduje się całodobowy parking strzeżony, a w sąsiedztwie (oddalony zaledwie o 150 metrów) jest duży parking darmowy. Miesięczny czynsz netto: 55,00 zł/m2 , Opłata administracyjna: 12,00 zł/m2. Media: woda i ścieki: według zużycia, energia elektryczna: według zużycia, wywóz śmieci: według zużycia ,ogrzewanie: ryczałt 3,50 zł/m2 Opłata administracyjna zawiera: sprzątanie i utrzymanie części wspólnych,ogrzewanie części wspólnych,klimatyzację części wspólnych,oświetlenie części wspólnych,oświetlenie pokoi biurowych,odśnieżanie,wentylację budynku,remonty i naprawy obiektów i urządzeń,konserwacje urządzeń grzewczo-klimatyzacyjnych i wentylacyjnych,koszty zarządzania i administracji nieruchomości,dostęp do części socjalnej (kuchnia, łazienka, toalety),elektroniczny system kontroli dostępu,system alarmowy, całodobową ochronę , elektroniczną tabliczkę informacyjną przy każdym pokoju (numer pokoju, logo firmy, ewentualne inne informacje),dostęp do lobby (automat z kawą, herbatą i innymi napojami, sofy i stoliki).Dodatkowo w cenie: nieograniczony dostęp do dwóch sal konferencyjnych (ok. 20m2 każda),sprzątanie pokoi biurowych,meble biurowe (biurka, kontenerki, krzesła i szafy),możliwość kolokacji sprzętu IT w serwerowni .W całym budynku rozprowadzone jest okablowanie strukturalne. Budynek wykończony jest w wysokim standardzie w skład którego wchodzą: klimatyzacja i wentylacja,sufity techniczne (podwieszane) ? wysokość kondygnacji 3 m,na podłogach w pokojach biurowych - wysokiej klasy wykładzina, na korytarzach i w pomieszczeniach socjalnych ? wysokiej klasy terakota antypoślizgowa, wszystkie pokoje mają okna i są doskonale nasłonecznione,kuchnia jest w pełni wyposażona (lodówka, zmywarka, kuchenka mikrofalowa, czajnik elektryczny, stół z krzesłami),toalety przystosowane dla osób niepełnosprawnych,łazienka z kabiną prysznicową . POLECAM! Telefon kontaktowy : , Niniejsze ogłoszenie nie stanowi oferty w rozumieniu KC, a dane w nim zawarte mają charakter wyłącznie informacyjny i mogą ulec zmianie.