MIESZKANIE NA SPRZEDAŻ: Rynek pierwotny, zakup od dewelopera, bez prowizji oraz PCC, Zadzwoń i umów się na bezpłatną i bezpieczną prezentację
Oferuję na sprzedaż mieszkanie czteropokojowe z osobną jasną kuchnią z ogrodem 120mkw oraz dwoma tarasami, w stanie deweloperskim, w nowym budynku położonym przy ulicy Kwidzyńskiej, we Wrocławiu. (...)
!ZADZWOŃ!
A.M. NIERUCHOMOŚCI
MIESZKANIE NA SPRZEDAŻ:
Rynek pierwotny, zakup od dewelopera, bez prowizji oraz PCC,
Zadzwoń i umów się na bezpłatną i bezpieczną prezentację
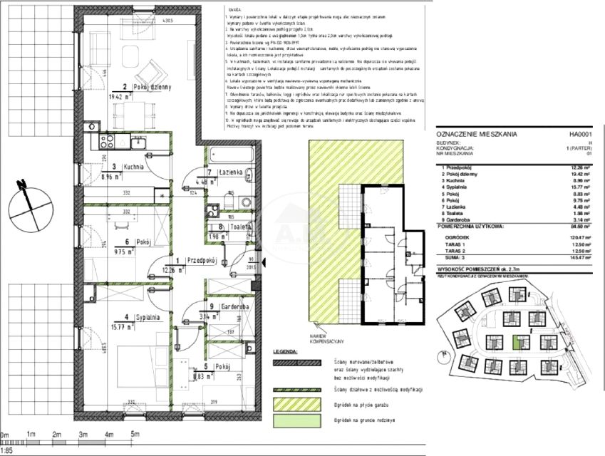
Oferuję na sprzedaż mieszkanie czteropokojowe z osobną jasną kuchnią z ogrodem 120mkw oraz dwoma tarasami, w stanie deweloperskim, w nowym budynku położonym przy ulicy Kwidzyńskiej, we Wrocławiu.
Inwestycja znajduje się w kameralnej, spokojnej i zielonej okolicy o niskiej zabudowie.
Dla tych, którzy cenią sobie sprawne połączenie z centrum Wrocławia, komunikacja miejska zapewnia zarówno linię autobusową jak i tramwajową (przystanek tramwajowy około 200 metrów od budynku).
W okolicy znajduje się wiele atrakcji, m.in.: korty tenisowe, hale z boiskami, park trampolin, siłownię, pływalnię oraz lodowisko. Do kompleksu sportowego GEM, Akademii Wychowania Fizycznego ze Stadionem Olimpijskim oraz terenów rekreacyjnych nad Morskim Okiem dojazd samochodem trwa jedynie kilka minut. Niecały kwadrans zajmuje spacer do malowniczych terenów zielonych nad Odrą i atrakcyjnych tras biegowych. W jeszcze krótszym czasie można dojechać do Parku Szczytnickiego, Hali Stulecia i Ogrodu Japońskiego.
metraż: 84,60mkw
układ pomieszczeń:
pokój dzienny + kuchnia + sypialnia + sypialnia + sypialnia +łazienka + toaleta + przedpokój + garderoba
powierzchnie przynależne: 2xtaras oraz ogród ~120mkw
termin oddania: III kwartał 2022r.
cena: 339 600zł
Udogodnienia: Dziedziniec, plac zabaw, wideodomofon,
Przynależności: Wszystkie mieszkania posiadają balkon lub ogród. Deweloper przewidział również komórki lokatorskie.
Bezpieczeństwo: Domofon, na terenie zamkniętym,
Wielkość Projektu: Inwestycja składa się z 13 budynków wielorodzinnych, w którym łącznie znajduje się 169 mieszkań.
Garaże: W inwestycji będą dostępne miejsca postojowe w hali garażowej.
Komunikacja: Autobus 650 metrów, Tramwaj 200 metrów
Odległość od Centrum: 5,7 km
W ofercie mieszkania deweloperskie z całego Wrocławia oraz okolic. W ramach bezpłatnej usługi pośrednictwa oferuję Państwu również:
- pomoc eksperta finansowego w uzyskaniu finansowania na zakup wymarzonej nieruchomości
- oferta współpracujących z nami firm wykończeniowych, które za rozsądną cenę zajmą się wykończeniem nieruchomości od A do Z
Oferowane nieruchomości z rynku pierwotnego oddawane są w stanie deweloperskim - do wykończenia, załączone w ogłoszeniu zdjęcia wnętrz są propozycją wykonania, realizacją firmy wykończeniowej, z którą współpracujemy.
Serdecznie zapraszam do kontaktu w wiadomości prywatnej lub pod numerem telefonu
Zadzwoń i umów się na spotkanie!