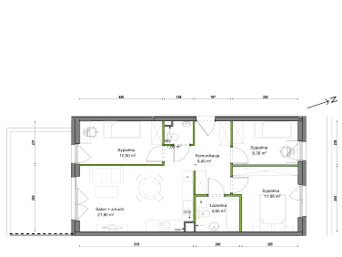
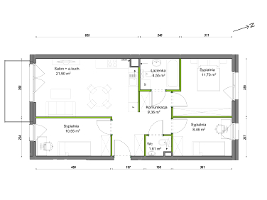
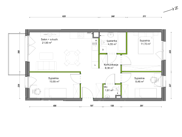
Mieszkanie Ołtaszyn, ul. Orawska 73
Orawska 73, Ołtaszyn, Wrocław, dolnośląskie
- 60,58 m²
Biuro sprzedaży
Skontaktuj się
Mieszkanie Ołtaszyn, ul. Orawska 73
Orawska 73, Ołtaszyn, Wrocław, dolnośląskie
zaktualizowane:
13 stycznia 2026
Mieszkanie Ołtaszyn, ul. Orawska 73
Inwestycja: Orawska Vita
Zaktualizowane: 13 stycznia 2026
60,58 m²
IV kwartał 2026
1/2
3
garaż
deweloperski
Zobacz na mapie
Termin realizacji:
IV kwartał 2026Piętro:
1/2Liczba pokoi:
3Miejsce postojowe:
garażStan mieszkania:
deweloperskiSzczegóły ogłoszenia
- Typ oferty: mieszkanie na sprzedaż
- Termin realizacji: IV kwartał 2026
- Status oferty: dostępne
- Rynek: pierwotny (oferta dewelopera)
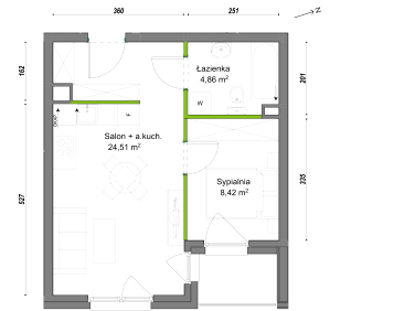
- Charakterystyka mieszkania: 60,58 m², 3 pokoje, 1 łazienka; stan: deweloperski
- Budynek: blok mieszkalny
- winda
- Rozkład mieszkania: piętro 1/2, jednopoziomowe
- Powierzchnia dodatkowa: balkon
- Kuchnia: aneks kuchenny
- Miejsce/a postojowe: w garażu wielostanowiskowym, przynależne do mieszkania - bez obowiązku zakupu (213 miejsc); garaż w bryle budynku
- Źródło: oferta dewelopera: Develia, zaktualizowane: 13.01.2026
- sygnatura ogłoszenia: E1/C/08
Lokalizacja
- Inwestycja: Orawska Vita
- Adres: Orawska 73, Ołtaszyn, Wrocław, dolnośląskie
- Otoczenie: osiedle domów jednorodzinnych, tereny zielone i rekreacyjne
- Na terenie inwestycji: plac zabaw, parking dla gości, stojaki na rowery, domofon, rowerownia, wózkownia, panele fotowoltaiczne, strefa rekreacyjna, mieszkania z ogrodami zimowymi, stacja ładowania samochodów elektrycznych, paczkomat
- W pobliżu żłobek, przedszkole, szkoła podstawowa, restauracja, przystanek autobusowy, supermarket, bankomat, park, plac zabaw, paczkomat, park skowroni, park południowy, las, łąka
Opis nieruchomości
Zapraszamy do zapoznania się z ofertą 3-pokojowego mieszkania, składającego się z pokoju dziennego z aneksem kuchennym, dwóch sypialni, łazienki, WC i balkonu. (...)

Inwestycja realizowana przez:
Develia
Biuro sprzedaży
gen. Romualda Traugutta 45, City Forum – City 1
Wrocław 50-416
| MieszkanieD2/E/02 | 68,09 m² | parter/2 | 3 |
| Mieszkanie | ||
|
||
| D2/E/02 |
| MieszkanieD2/F/04 | 38,31 m² | parter/2 | 2 |
| Mieszkanie | ||
|
||
| D2/F/04 |
| MieszkanieD2/F/07 | 68,33 m² | 1/2 | 4 |
| Mieszkanie | ||
|
||
| D2/F/07 |
| MieszkanieD2/F/01 | 67,86 m² | parter/2 | 4 |
| Mieszkanie | ||
|
||
| D2/F/01 |
| MieszkanieD2/F/14 | 68,48 m² | 2/2 | 4 |
| Mieszkanie | ||
|
||
| D2/F/14 |
| MieszkanieD2/G/02 | 37,66 m² | parter/2 | 2 |
| Mieszkanie | ||
|
||
| D2/G/02 |
| MieszkanieD2/G/12 | 37,53 m² | 2/2 | 2 |
| Mieszkanie | ||
|
||
| D2/G/12 |
| MieszkanieF1/C/02 | 33,65 m² | parter/2 | 2 |
| Mieszkanie | ||
|
||
| F1/C/02 |
| MieszkanieE1/A/01 | 54,37 m² | parter/2 | 3 |
| Mieszkanie | ||
|
||
| E1/A/01 |
| MieszkanieE1/A/06 | 61,76 m² | 1/2 | 3 |
| Mieszkanie | ||
|
||
| E1/A/06 |
Biuro sprzedaży
71 716 55...
71 716 55 71










